Bývanie

Rekonštrukcia RD HRCK

Architektonický návrh rekonštrukcie rodinného domu vychádza z vízie investora rozšíriť obytný priestor o nové podlažie a zároveň zvýšiť kvalitu bývania.

Na 1.NP sme navrhli dispozičné úpravy existujúceho objektu, ktoré reflektujú potreby a životný štýl investora. Nový vstup do domu je situovaný na východnej fasáde – ide o obnovenie pôvodného, dnes už nevyužívaného vstupu. Po vstupe sa priestor prirodzene otvára do dennej zóny, ktorú tvorí kuchyňa, obývacia izba a knižnica, vzájomne prepojené do harmonického celku. Praktický vstupný prvok v podobe integrovanej skrine nahrádza tradičný šatník či botník, čím šetrí priestor a zvyšuje jeho využiteľnosť.

V zadnej časti prízemia sa nachádza toaleta a rodičovská spálňa so samostatnou kúpeľňou. Denná časť je priamo prepojená s exteriérom – výstupom na prestrešenú terasu, ktorá slúži ako prirodzené rozšírenie obytného priestoru.

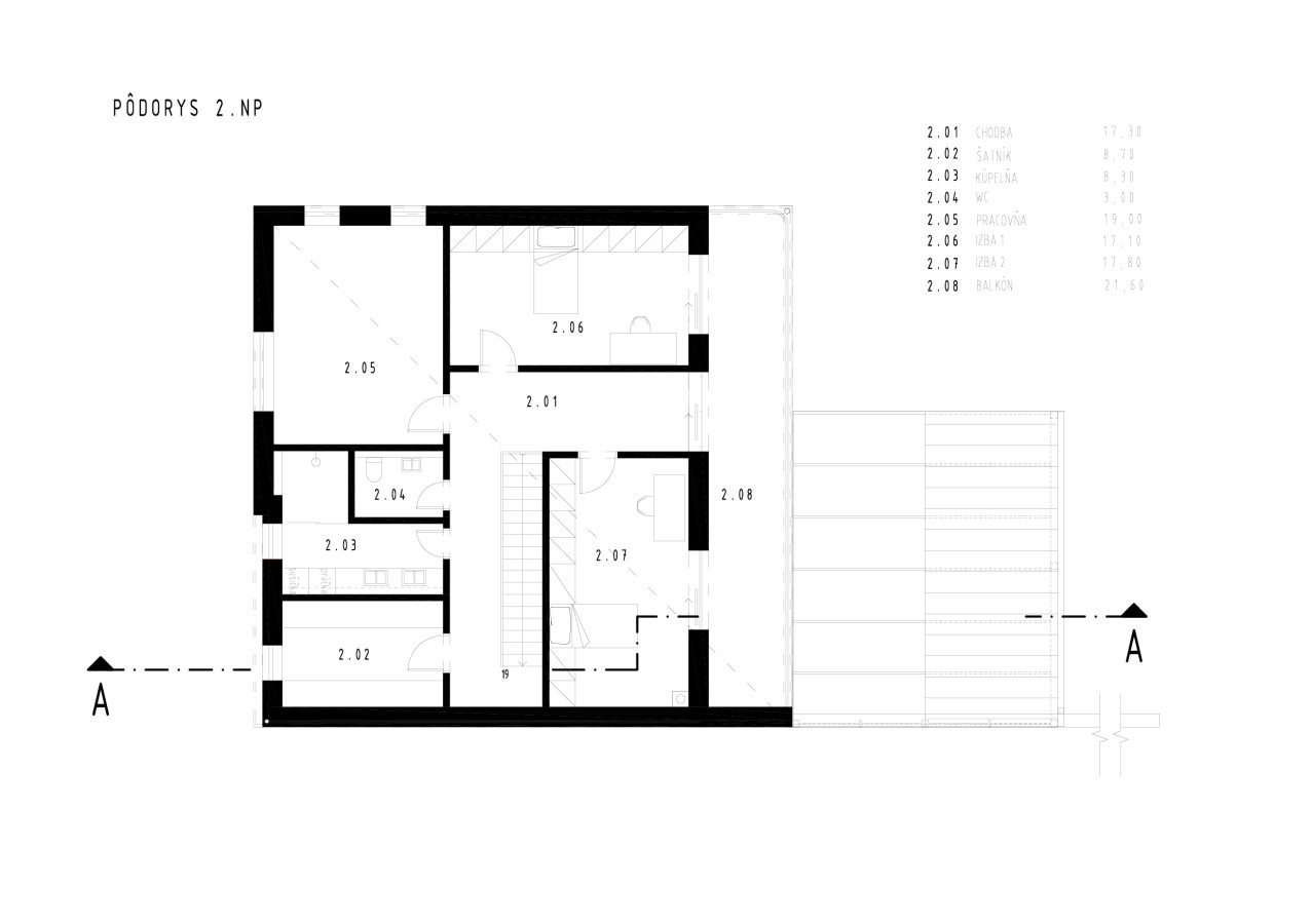
Na 2.NP sú situované dve detské izby, kúpeľňa s toaletou, samostatný šatník a pracovňa. Izby aj chodba majú prístup na balkón, ktorý zabezpečuje kvalitné presvetlenie a kontakt s exteriérom.

Architektonický výraz domu definuje originálne riešenie strechy – šikmá rovina s diagonálnym hrebeňom, ktorý prechádza od juhovýchodného k severozápadnému rohu domu. Táto forma vytvára dojem pultovej strechy z každého pohľadu, čím domu dodáva dynamiku a súčasný charakter. Nezvyčajná geometria strechy sa stáva kľúčovým prvkom architektonickej identity a zreteľne odkazuje na moderný prístup k rekonštrukcii tradičného rodinného domu.