Interiér

Interiér MD company

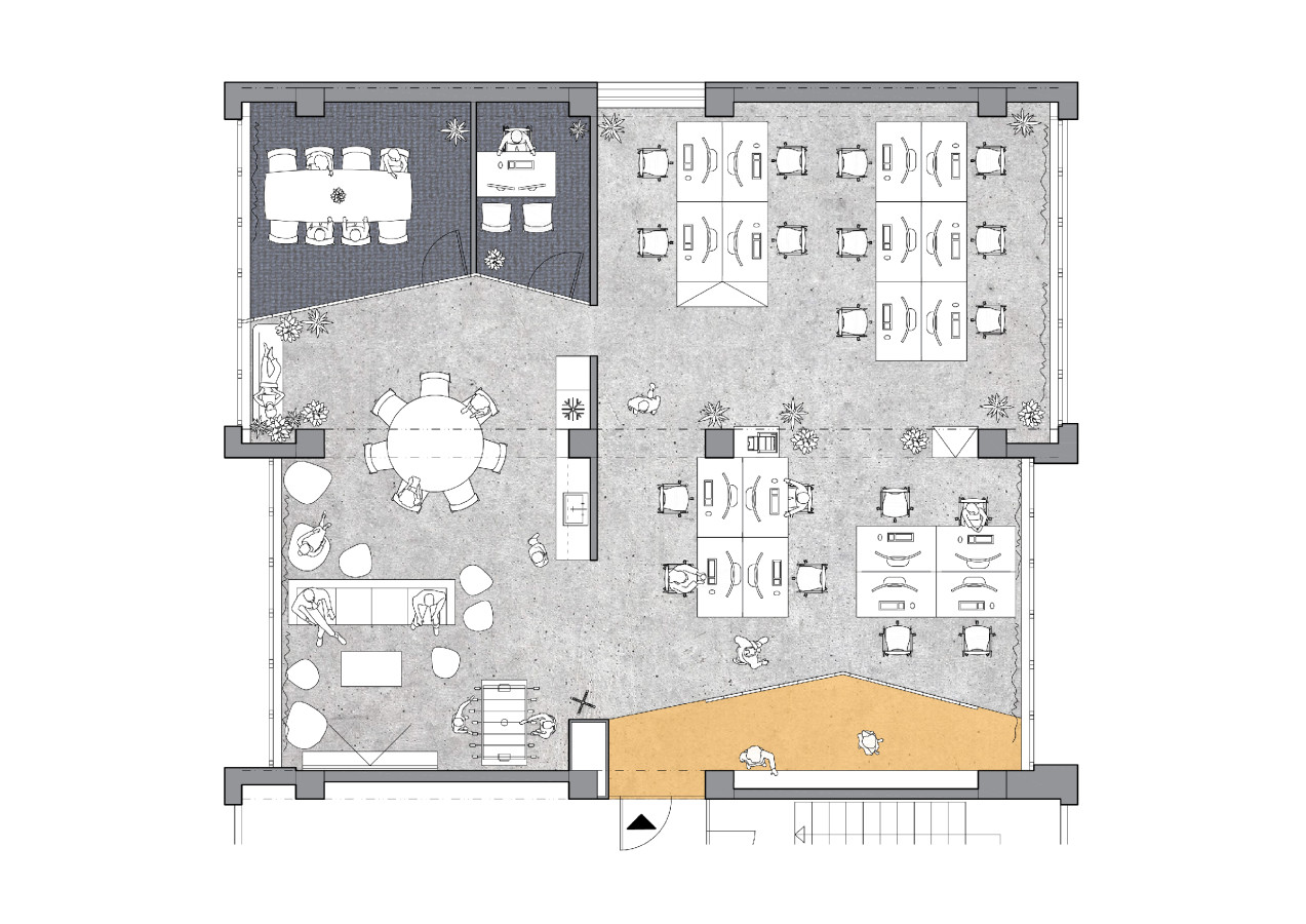
Návrh interiéru vychádza z konceptu priznania surových materiálov. Základná kostra dizajnu interiéru spočíva v očistení konštrukčného systému až na hrubý betón. Pre tvorbu dispozície interiéru bol použitý spôsob tzv. „ open space office“. 

Priestor kancelárie spĺňa moderné trendy a je racionálne rozdelený na pracovnú a oddychovú časť. Pri vstupe bolo nevyhnuté vytvoriť oddelený priestor od otvoreného kancelárskeho priestoru, aby sme vytvorili šatníkovú časť. Na oddelenie sme použili sklá z Profilitu. Tento materiál sme použili aj na oddelenie zasadacej miestnosti a kancelárie manažéra. Zalomenie sklenených stien bolo inšpirované logom firmy.

Surový monochromatický interiér je oživený farebnosťou nábytku a podláh pri vstupe a zadnej konferenčnej časti. Použité farby vychádzajú taktiež z farieb loga firmy. Hlavným akcentom na strope je lineárne trubicové svietidlo nad celým pracovným priestorom. Svetelné trubice v rôznych formách sú  použité aj v konferenčnej miestnosti, pri relaxačnej lavici a nad jedálenským stolom. 

Na zadnej stene v pracovnej časti navrhujeme drevenú mapu Európy a v kancelárii manažéra sme navrhli neónové svietidlo v tvare kamiónu, ako odkaz na zameranie firmy.